您的位置: 首页 > 新房 > 蓝光未来城

蓝光未来城

7500元/㎡
物业类型 : 普通住宅
开盘时间 : 2020年12月12日
交房时间 :
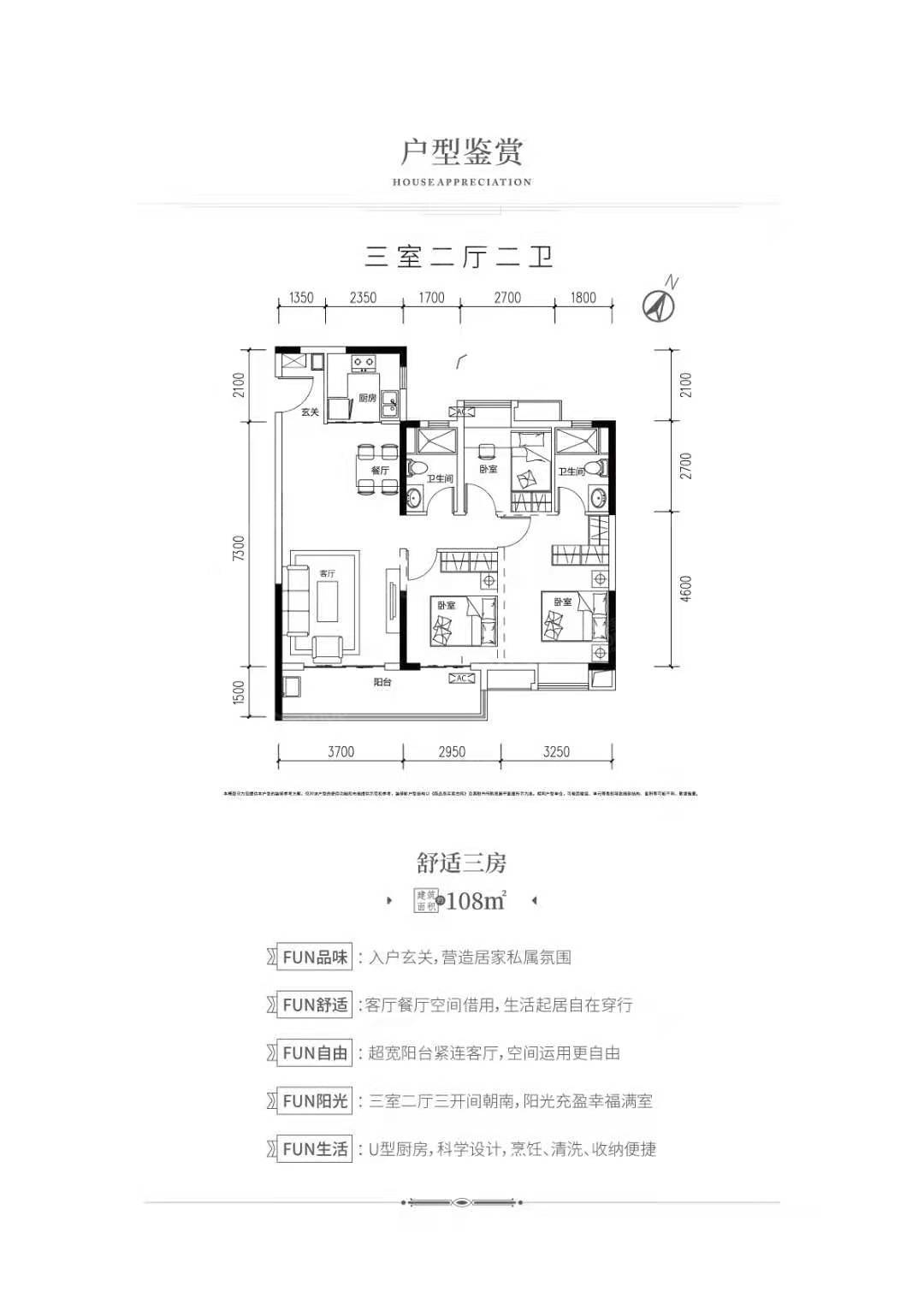
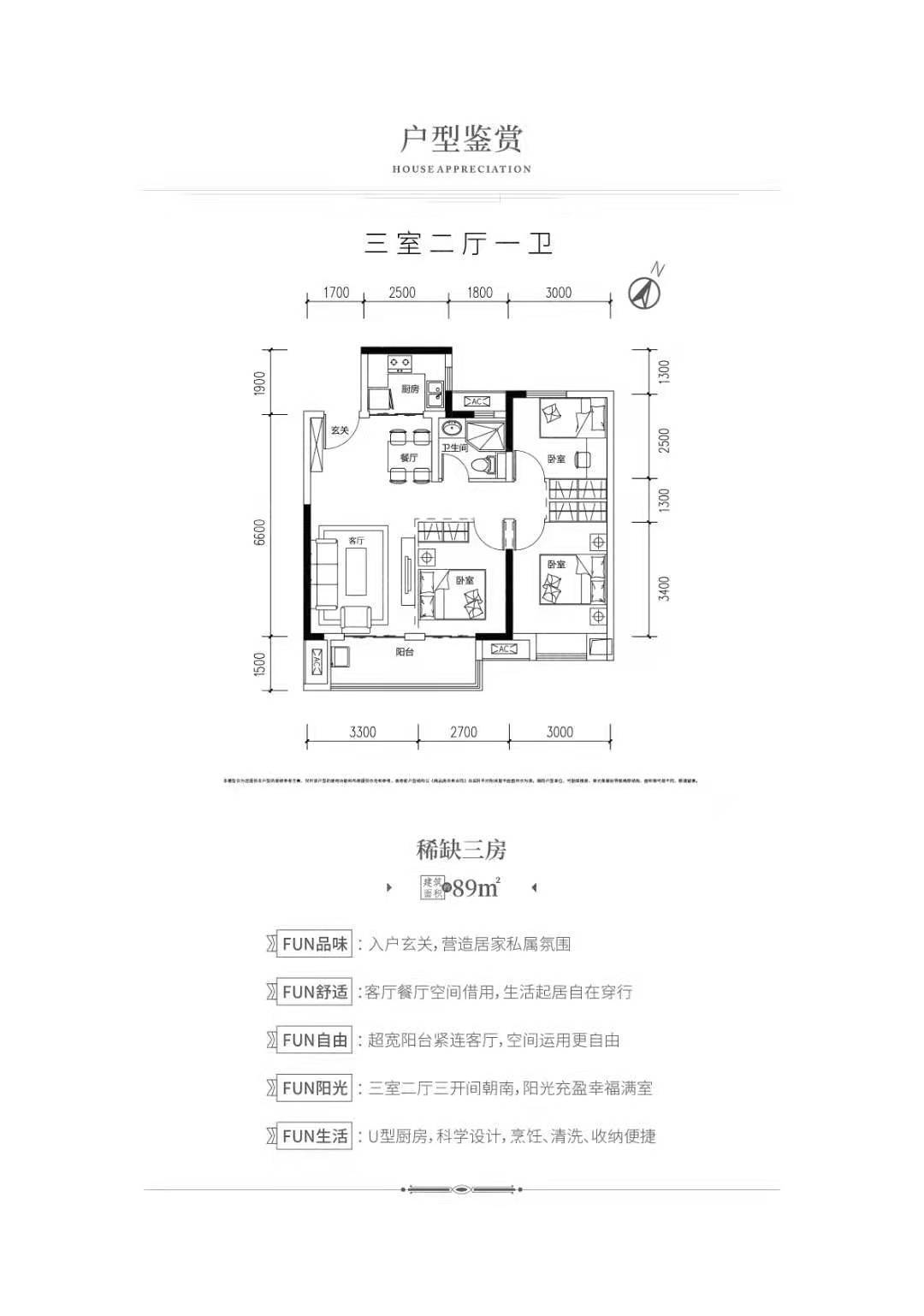
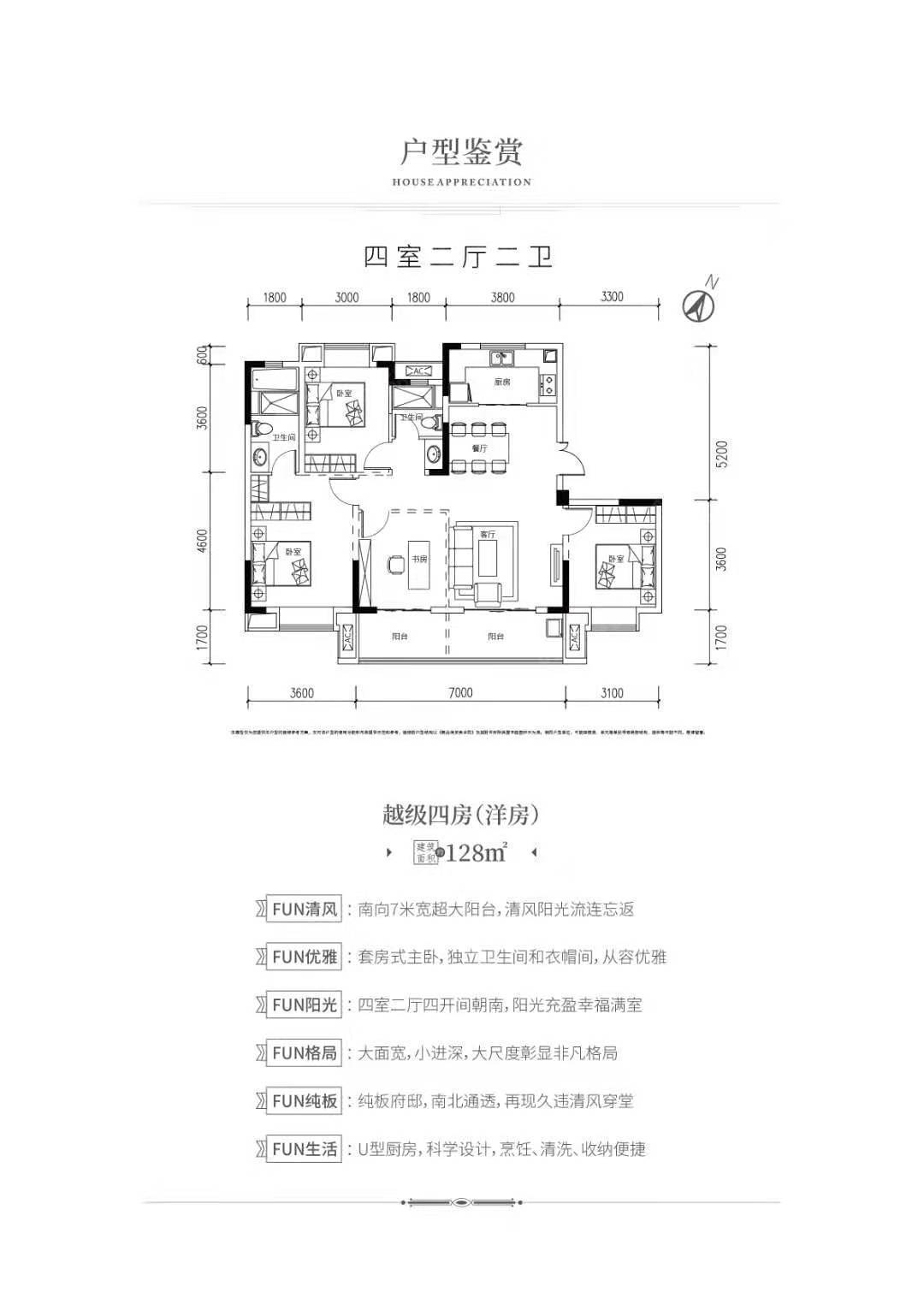
主力户型 : 3室2厅(108.00㎡) |3室2厅(89.00㎡) |4室2厅(118.00㎡) |4室2厅(118.00㎡) |4室2厅(128.00㎡)
楼盘地址 : 东津新区鹿门大道与金源路交汇处
苦苦寻找楼盘信息?不如一个电话全部搞定

13135875717

暂停销售!

楼盘动态

查看更多

时间轴

  • 2020年12月12日

  • 灵动四房

    在售

    灵动四房 4室2厅1厨2卫

    建筑面积118.00㎡

  • 舒适三房

    在售

    舒适三房 3室2厅1厨2卫

    建筑面积108.00㎡

  • 进阶四房(洋房)

    在售

    进阶四房(洋房) 4室2厅1厨2卫

    建筑面积118.00㎡

  • 稀缺三房

    在售

    稀缺三房 3室2厅1厨1卫

    建筑面积89.00㎡

  • 越级四房(洋房)

    在售

    越级四房(洋房) 4室2厅1厨2卫

    建筑面积128.00㎡

楼盘详情

项目地址: 东津新区鹿门大道与金源路交汇处 开发商: 湖北楷炎房地产开发有限公司 售楼处地址: 东津新区鹿门大道与金源路交汇处
物业公司: 蓝光嘉宝物业 开盘时间: 2020-12-12 交房时间:
产权年限: 70年 物业类型: 普通住宅 车位情况: 653个
建筑类型: 小高层 高层 计划户数: 572户 占地面积: 28800 ㎡
物业费用: 1.4元/平米.月 建筑面积: 86000 ㎡ 装修情况: 毛坯

蓝光未来城择址鹿门大道与金源路交汇处,于东津之芯拥揽新区繁华,项目毗邻襄阳市新政务中心,兑现新行政中心和高铁门户区功能,尊崇地脉政通人和。版块内金融、科技、文化等政商精英汇聚,领衔襄阳人居价值高地。


生活配套

教育    项目对面即是新民小学、新民中学,约2公里可到达东津实验小学,约3公里涵盖襄阳四中初中部、襄阳三中、襄阳市文化艺术中心、襄阳图书馆(东津新馆),让您的孩子从小赢在起跑线上,享受一站式教育服务,护航子女步步成才。 

医疗    项目约3公里到达三级甲等医院襄阳市中心医院东津院区、襄阳市中医院东津院区,车行跨过鹿门大桥可快速抵达襄州区一人民医院,全面为您和家人健康保驾护航。 

共享社区    于新加坡式花园生活中汲取精髓,在建筑设计上以高层+洋房产品组合形成品质极佳的高低配总平布局,低至2.2的容积率,让您臻享低密生活。首创叶脉式景观布局,叶脉为路叶片为景。围绕叶脉路径布局绿化景观,目之所及皆为美景,从室内到室外每一个空间,都为您营造未来有机的生活场。

智慧科技住区    蓝光未来城拥有十大智能化服务体系:智能化报警系统、门禁管理系统、机动车访客系统、智能生活系统、视频监控系统、电子巡更系统、楼宇对讲系统、梯控五方对讲系统、智能密码锁、家庭入侵报警系统,科技住区无微不“智”,让业主享受安全便捷的品质生活。


楼栋信息

蓝光未来城楼栋信息
8#(在售)
7#(在售)
6#(在售)
5#(在售)
2#(在售)
1#(在售)
在售
待售
售罄